Image of
Image of
Image of
Image of
Image of
Image of
Image of
Image of
Image of
Image of
Image of
Image of
Image of
Image of
Image of
Image of
Image of
Image of
Image of
Image of
1 / x

Primary School

Mechelen (B)

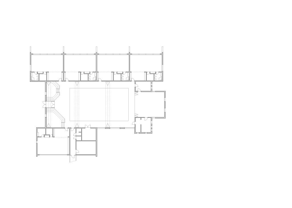
De Spreeuwen Primary School consists of a motley collection of buildings and playgrounds on a rectangular plot. The heterogeneous complex with its disjointed outdoor space evolved over time in response to the growing number of pupils. The latest extension entails the addition of ten new infant classes and a covered playground. The design abandons the piecemeal approach of the past by arranging the programme in mirror-image against the existing infants block, thereby not only creating a new building but also strengthening the spatial layout. Architecturally, the new building is a direct quotation of the existing building. Construction, building heights and facade composition have all been adopted. To forge old and new into a single whole, the building has been given a new all-round roof-edge detailing.

Project

:

De Spreeuwen Primary School

Location

:

Mechelen (B)

Design

:

2011-2015

Status

:

Built

Client

:

GO! Onderwijs voor de Vlaamse Gemeenschap

Photography

:

Karin Borghouts

Nomination

:

ARC Award 2015