Image of
Image of
Image of
Image of
Image of
Image of
Image of
Image of
Image of
1 / x

Felix Platter Areal

Basel (CH)

Op het Felix Platter-Areal in Basel (CH) ontstaat door herstructurering en nieuwbouw van het bestaande ziekenhuis ruimte voor de ontwikkeling van circa 500 woningen volgens het coöperatie-model van de Zwitserse genossenschaften. Stedebouwkundig uitgangspunt hierbij is om niet een geheel nieuwe woonwijk te maken, maar juist om ‘verder te bouwen’ aan de omliggende wijk en daarbij het oude monumentale ziekenhuis uit de jaren ’60 tot beelddrager te maken.

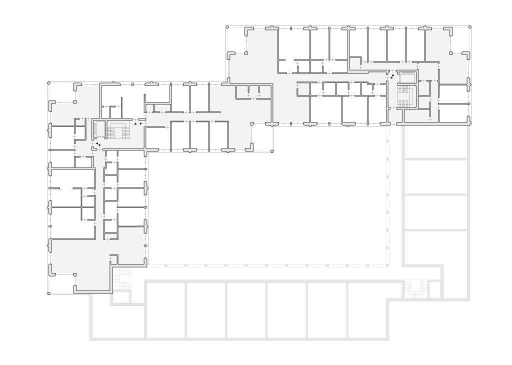
Een losse schakeling van drie gesloten bouwblokken omarmt de bestaande gebouw- en groenstructuur, en bakent in samenspraak hiermee een reeks goed geproportioneerde tussenruimtes af. Ieder gebouw is voorzien van een plint met collectieve en/of commerciële voorzieningen, die hun front hebben aan een rondgaande, overdekte arcade langs iedere binnentuin. Ook de woningentrees zijn op deze arcades aangesloten, zodat vanuit de woning alle functies overdekt bereikbaar zijn.

De bovengelegen woningen bevinden zich achter een 6 tot 8-laagse gevel met een tectonisch spel van verticale pilasters en horizontale vloerbanden, terugliggende gevelvlakken en opengewerkte hoeken met ruime balkons, waardoor licht- en schaduwwerking de relatief grote gebouwen een elegant voorkomen geven. Door de terughoudende grondtoon van beige, lichtgroen en bruin wordt ingetogen het gesprek aangegaan met de omgeving en vormt zich een heldere achtergrond waartegen de bestaande bebouwing een nieuwe betekenis krijgt.

Project

:

Felix Platter Areal

Locatie

:

Basel (CH)

Ontwerp

:

2017

Status

:

Prijsvraag

Opdrachtgever

:

Baugenossenschaft wohnen&mehr

Landschapsarchitect

:

Hager & Partner

Stedenbouwkundig ontwerp

:

Van de Wetering